Pinfold Street, Darlaston, Wednesbury, WS10 8SY
- Type: Industrial
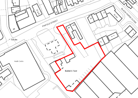
- Size: 0.59 acres (0.24 hectares)
- Status: Sold STC
- Location: Pinfold Street, Darlaston, Walsall, WS10 8SYView map
- Single And Two Storey Offices and Mess Facilities
- Mixed Concrete, Tarmacadam and Compacted Earth to Yard
- Buildings Measure Circa 115.8 sqm (1246.46 sqft)
- Total Site Area 0.24 Hectares (0.59 Acres)
- Call us on 01902 710999
- Make an enquiry
Full Property Description
LOCATION
Pinfold Street is a busy commuter route between Bilston, Darlaston and Walsall and the site is located a short walking distance to the southwest of Darlaston town centre.
Ideally placed to benefit from excellent road links to Walsall, Wolverhampton and Birmingham. Access to the national motorway network can be gained at junctions 9 and 10 of the M6 which are both approximately 2 miles from the site.
DESCRIPTION
The premises comprise a partially surfaced yard, single storey office premises of traditional brick construction and a two storey portakabin. Originally used as a contractor’s yard but in recent years has been used for the storage of car parts.
ACCOMMODATION
The accommodation measures circa 115.8 sqm (1246.46 sqft) gross internal area. The site measures circa 0.24 Hectares (0.59 acres).
TENURE
The freehold interest in the property is available for sale. It is currently occupied but may be available with vacant possession.
RATEABLE VALUE
The rateable value for the property is £14,250.
SERVICES
We understand that all mains services are available to the premises, however, we would ask all interested parties to make their own enquiries in this regard.
PLANNING
The site lies within the jurisdiction of Walsall Metropolitan Borough Council. The site is located within Darlaston District Centre and may be suitable for alternative uses subject to the necessary consents.
LEGAL COSTS
All parties to bear their own costs. Potential purchasers/occupiers will be expected to undertake to meet the vendor’s legal fee’s should they withdraw after solicitors have been instructed.
GUIDE PRICE
The guide price is £500,000 (Five Hundred Thousand Pounds). We reserve the right to set a date for final and best bids.
VIEWING
Viewings by appointment only. All enquiries to First City ‘The Property Consultancy’ on 01902 710999 quoting reference 5452. Ask for Christopher Bywater chris@firstcity.co.uk or Chontell Buchanan chontell@firstcity.co.uk













