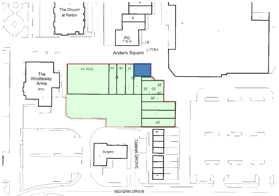
Unit 8B, Anders Square, Perton, Wolverhampton, WV6 7QH
- Type: Retail
- Size: 1792 sqft
- Status: To Let
- Location: Unit 8A, Anders Square, Perton, Wolverhampton, WV6 7QHView map
- Ground Floor retail accommodation facing pedestrianised area. Located amongst other retail outlets and adjacent to Sainsbury’s Supermarket
- Measuring approximately 1792 sqft
- Free car parking nearby
- Return frontage/rear service yard
- Call us on 01902 710999
- Make an enquiry
Full Property Description
LOCATION
Unit 8B is located on Anders Square Shopping Centre and is located amongst other retail users including Sainsbury’s Supermarket and the Wrottesley Arms Public House with free nearby parking.
Perton has a small shopping parade, supermarket, two pubs, community church, library, three schools, medical centre and dentist and the premises are positioned to serve the local community. More recently land adjacent to Perton is under development for circa 600 new homes.
Perton Golf Club and Bradshaws Farm are nearby.
DESCRIPTION
The unit provides open plan retail area with and WC’s and storage to the rear.
The premises immediately face the pedestrianised area with a return frontage. An exit door at the rear leads to a secure service yard.
ACCOMMODATION
The premises has a net lettable area of approximately 1792 square feet.
SERVICES
We understand that water and electricity are available to the premises.
Interested parties should make their own enquiries with the relevant utility providers.
LEASE TERMS
Lease terms available on request.
PLANNING
The premises trade as a retail shop but other retail uses are invited.
RENTAL
Available on request.
EPC
The Energy Performance Rating is B47 expiring 24 June 2033.
SERVICE CHARGE
The Landlord levies a service charge on the tenants to cover the costs of external repairs and cleaning of common parts.
BUILDINGS INSURANCE
The in-going tenant will be required to contribute towards insuring the building.
LEGAL COSTS
All parties to bear their own costs. Potential occupiers will be expected to undertake to meet the Landlord’s legal fees should they withdraw after Solicitors have been instructed.
VIEWINGS
By appointment with the sole letting agents First City Limited on 01902 710999 quoting reference 5458. Ask for Neil Hazlehurst neil@firstcity.co.uk
SUBJECT TO CONTRACT













