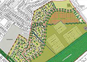
The Village of Essington could benefit from a range of new community facilities as part of a development scheme being proposed by local businessman Jack Moody. Mr Moody founder of Jack Moody PLC has commissioned Planning Consultants First City Limited to lead a public consultation event for the development proposals on land situated off Hobnock …
Tag: first city land development agency







